Panoramica
- Updated On:
- Febbraio 20, 2026
-
- 10 Vani
- 2 Bagni
- 345 m2
Descrizione
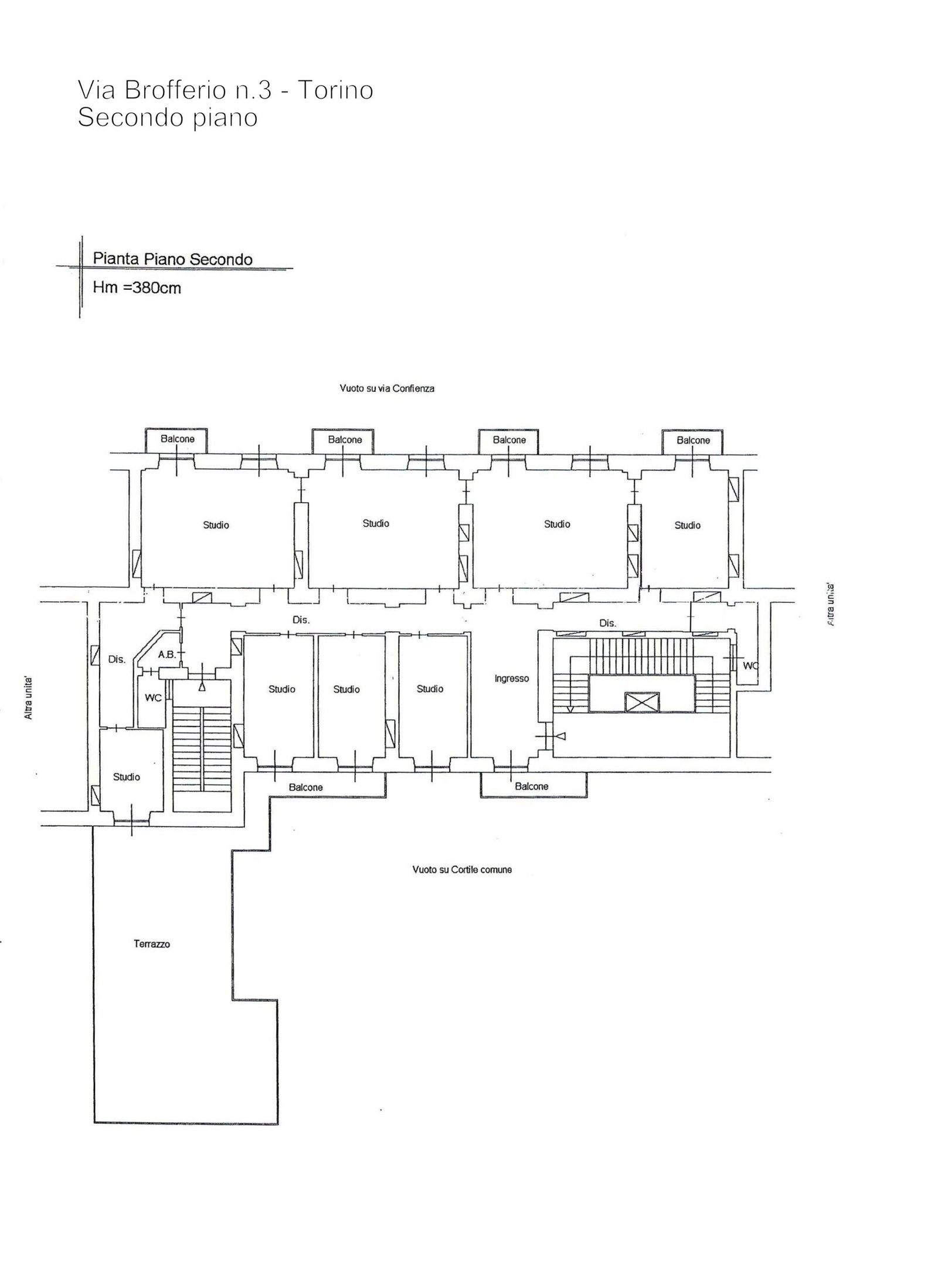
In pregiato stabile d’epoca dotato di ascensore, proponiamo in vendita al piano nobile, PRESTIGIOSO UFFICIO già oggetto di un’accurata ristrutturazione nel 2014, riguardante il recupero di pregievoli palchetti, soffitti a volta affrescati, decorazione e restauro delle porte dotate di sovraporte, camini nei saloni e di altri particolare d’epoca.
L’ufficio, in origine adibito ad uso abitativo,:è dotato di secondo ingresso di servizio dalla scala del cortile ed è inoltre dotato di un grande terrazzo di circa 80 mq posto all’interno dell’ampia e luminosa area racchiusa nel quadrilatero dei fabbricati d’epoca che affacciano su via Brofferio, via Confienza, via Ponza e corso Re Umberto.
Gli interni sono molto ben conservati e sono composti da un ampio ingresso attualmente adibito a reception, corridoio di disimpegno con soffitto a volta decorato, tre saloni (di circa mq 35 cadauno) ciascuno con camino e palchetti pregiati, quattro camere, cinque balconi, due servizi con antibagno, disimpegno e ulteriore vano per servizi vari con accesso diretto sul terrazzo.
Caratteristiche: riscaldamento centralizzato con valvole, impianto di aria condizionata canalizzato, alti soffitti, serramenti in legno con doppio vetro.
Accessori: l’immobile è dotato di un grande locale cantina di pertinenza, spazioso e salubre, di mq 49 catastali; inoltre è possibile acquistare dagli stessi proprietari un’autorimessa di mq 17 utili, posta nel cortile dello stabile.
L’unità immobiliare offerta è ideale per chi cerca ambienti raffinati di rappresentanza, nonché perfetta per prestigiosi studi professionali, attività direzionali o uffici esclusivi e riservati posti nel centro di Torino, a pochi metri da Piazza Solferino – zona dotata di comodo parcheggio e ben collegata ai servizi pubblici-
L’ubicazione e l’accurato stato conservativo dell’appartamento possono altresì consentire il ripristino dell’originaria destinazione a prestigiosa abitazione d’epoca, che lo renderebbe una lussuosa dimora con terrazza, anche divisibile.













































































